Rustico in vendita

Costermano, Località Pizzon - Pizzon
€ 490.000
Prezzo aggiornato
7 locali 7 locali
135 Mq 135 Mq
2 bagni 2 bagni

Rustico in vendita

Costermano, Località Pizzon - Pizzon

Descrizione annuncio

Costermano sul Garda:

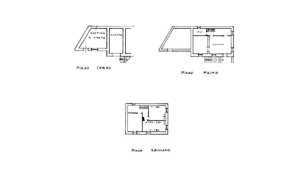
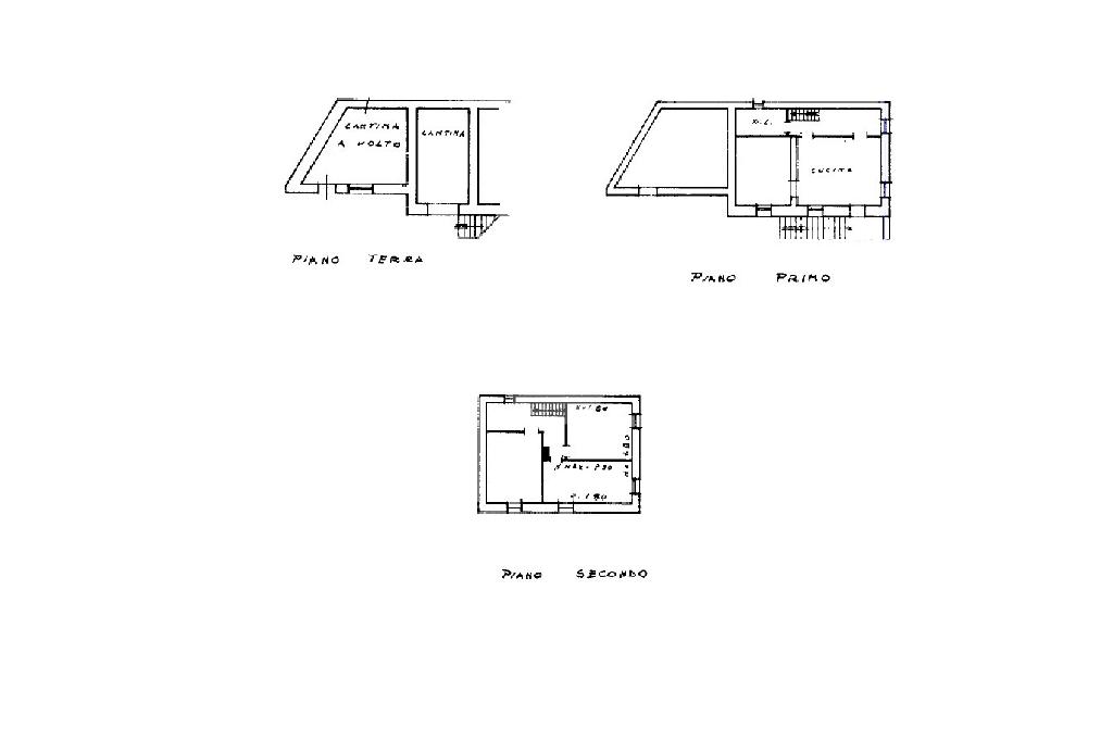
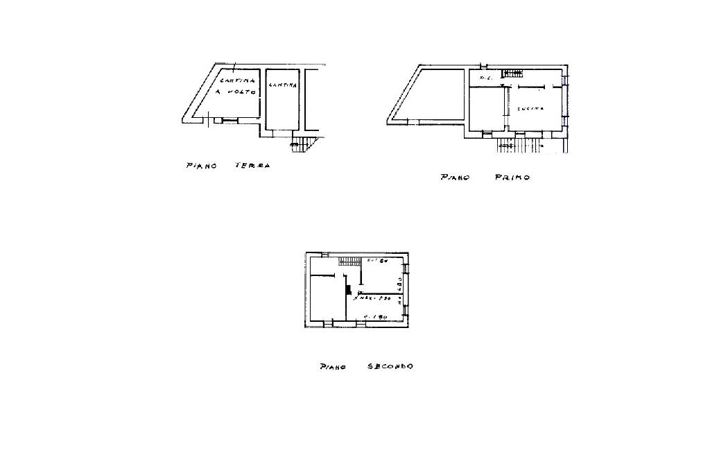
Nel cuore della tranquilla località Pizzon, a Castion Veronese, proponiamo una suggestiva porzione angolare di rustico inserita all'interno di una corte graziosa e ben tenuta, dove il tempo sembra essersi fermato. L'immobile si sviluppa su tre livelli, unendo perfettamente il fascino dell'antico con il comfort della ristrutturazione moderna.

Al piano terra troviamo una splendida cantina a volto dell'epoca, sapientemente restaurata, perfetta per la conservazione dei vini o come spazio caratteristico da valorizzare. A fianco, un comodo ricovero attrezzi. Dallo stesso livello, una scala conduce all'interno dell'abitazione, che si apre con una cucina abitabile caratterizzata dalla presenza di un lavabo originale del rustico, elemento autentico e di grande fascino, e dalla zona pranzo, accogliente e luminosa.

Proseguendo, un corridoio distribuisce gli spazi verso una camera singola con affaccio sulla corte, un bagno moderno completo di box doccia e sanitari sospesi, e infine una spaziosa zona giorno, alla quale si accede attraversando un caratteristico volto a sassi. Questo ambiente, con i suoi soffitti alti 4 metri, rappresenta il cuore della casa, perfetto per momenti di relax o convivialità.

Salendo al piano superiore, troviamo un secondo bagno finestrato, una camera matrimoniale e un ampio open space attualmente arredato con ulteriori posti letto, reso ancora più suggestivo dalla presenza di travi in legno a vista, che conferiscono calore e autenticità agli ambienti.

Questa proprietà rappresenta una soluzione unica nel suo genere, ideale sia come abitazione principale che come casa vacanza, immersa nella quiete di una località collinare, ma a breve distanza dal Lago di Garda e dalle principali attrazioni della zona. La proprietà è completata da un terreno di 350 mq adiacente, perfetto per la creazione di posti auto, offrendo così un ulteriore vantaggio in termini di praticità e spazio.

'Si prega di notare che, nonostante l'impegno profuso per garantire l'accuratezza e la correttezza delle informazioni presentate, il contenuto non ha valore

Mostra tutto

Nelle vicinanze

Trasporto pubblico Trasporto pubblico
Trasporto pubblico
1,5 Km
Ca' Degli Ulivi Golf
Ca' Degli Ulivi Golf
2,2 Km
Ricariche auto elettriche Ricariche auto elettriche
Madrigale the Panoramic Resort
2,9 Km
Scuole Scuole
Scuola Elementare Di Pesina
2,5 Km
Scuola elementare/media
2,7 Km
Farmacia Farmacia
Farmacia Costabella
2,7 Km
Farmacia Sartori
2,8 Km
Supermercati Supermercati
Ruffo Alimentari - Macelleria, Pane, Alimenti
2,6 Km
Negozi Negozi
Negozi
760 m
El Pistor
2,0 Km
Rizzi
2,1 Km
Lenotti Salumeria, Alimentari, Macelleria
2,1 Km
La Bottega Da Beppo
2,7 Km
Bar Bar
Taverna Max
830 m
Locanda San Verolo
1,3 Km
Bar Campagnari
2,6 Km
Bar Bertolini
2,7 Km
Bar
2,9 Km
Ristoranti Ristoranti
La Piazza
760 m
Trattoria El Brol
830 m
Trattoria Relax
830 m
Casa degli Spiriti
1,1 Km
Locanda San Verolo
1,4 Km
Mostra tutto

Caratteristiche

Rif.:
61106958
Piano:
3 di 3 (Piano su più livelli)
Posti auto:
2
Balconi:
1
Terrazzi:
1
Camere da letto:
3
Mostra tutto
Prezzo Prezzo
€ 490.000
Rata mutuo Rata mutuo
€ 2.310 / mese
Spese annue Spese annue
€ 0
Proponi il tuo prezzoProponi il tuo prezzo

Classe Energetica

C
C
C
C
C
C
C
C
C
EP invernale del fabbricato:
EP estiva del fabbricato:
Anno di costruzione:
2018
Riscaldamento:
Autonomo
Tipo impianto:
A radiatori
Tipo alimentazione:
Metano

Prezzo ridotto di €1 (10%%)

Ti interessa visionare l'immobile?

Fissa un appuntamento  Fissa un appuntamento

Richiedi informazioni

Clicca su Leggi per aprire l'informativa
* Questi campi sono obbligatori

Calcola il tuo mutuo

Semplice e senza impegno
Anticipo

( % )
Mutuo

( % )

pochi semplici passi

inserisci i tuoi dati
Questionario completato
Grazie per aver richiesto un appuntamento senza impegno con un nostro Consulente del Credito e Assicurativo.

Hai inserito correttamente tutti i dati necessari e a breve riceverai una e-mail con un link da convalidare per inviare i tuoi dati.
Affiliato
Garda Associati Srl
Via Pozzo Dell'Amore, 60 37010 Cavaion Veronese (VR)

Il nostro staff


  • Tommaso Speziali
    Affiliato

  • Isabel Natalie Blume
    Collaboratrice

  • Tommaso Camera
    Collaboratore

  • Flavia Fiorato
    Coordinatrice

  • Davide Pozzani
    Collaboratore

  • Chiara Vantini
    Coordinatrice

  • Claudia Zito
    Responsabile
Via Pozzo Dell'Amore, 60 37010 Cavaion Veronese (VR)
Zona: Lago di Garda - Entroterra - Affi - Cavaion - Costermano - Albarè - Castion - Marciaga
Mostra su mappa
Orari: dal lunedì al venerdì 9:00-12:30 / 15:00-19:30 sabato 9:00 - 12:30 / 15:00-18:00
Affiliato
Garda Associati Srl
Via Pozzo Dell'Amore, 60 37010 Cavaion Veronese (VR)

2025 Tecnocasa Franchising S.p.A. - P. IVA 08365160152 - Via Monte Bianco 60/A 20089 Rozzano (MI). Ogni agenzia ha un proprio titolare ed è autonoma. Privacy policy | Policy utilizzo | Cookie policy